北京信息港首页 | 资讯  | 京都  | 科技  | 体育  | 娱乐  | 教育  | 房产  | 健康  | 育儿  | 图库  | 专题  |

首页  | 资讯  | 楼市  | 购房  | 家居

> 房产 > 家居 > 正文

139平品格糊口 常州人的轻混搭简约舒服快乐屋

2015-02-15 23:14 来源:网络 浏览:
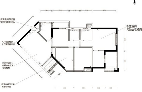
装修面积:139平方米,平层公寓 装修户型:三室两厅 装修风格:简约 主要材料:马赛克,进口墙纸,金属板,进口地板等


 

装修面积:139平方米,平层公寓

装修户型:三室两厅

装修风格:简约

主要材料:马赛克,进口墙纸,金属板,进口地板等



阅读完标题为(139平品格糊口 常州人的轻混搭简约舒服快乐屋)的文章后,{www.bjxxg.cn}小编为大家推荐更多相关文章,千万不要错过哦! (责任编辑:北京信息港)